Listed by Jennifer Densmore of Deerfield Valley Real Estate
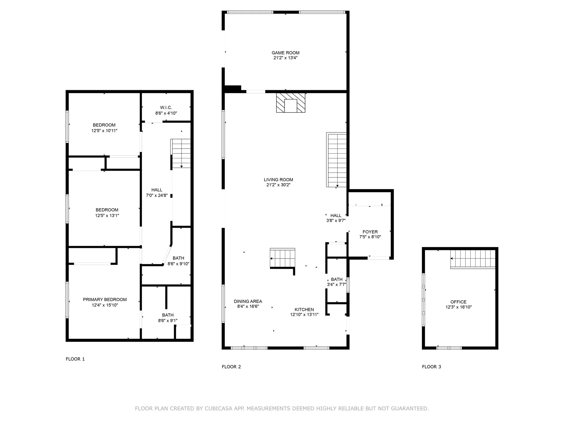
Set on 3 beautiful acres, this well-maintained 3-bedroom plus loft, 2 1/2 bath home is truly move-in ready. Enter through a spacious mudroom with a convenient back opening for bringing in firewood for the cozy wood stove in the living room. The open-concept kitchen and dining area provide plenty of room for entertaining, while a den/game room just off the living room with a bar area (4X8) offers extra space to gather. A half bath is also located on the main level. Upstairs, the loft makes a great office, reading nook, or playroom. The lower level features a primary suite with a ¾ bath, two additional bedrooms, another ¾ bath, laundry, and a utility room. Step outside to the back deck and enjoy the countryside views, where you may even catch sight of cows grazing across the way. The North Adams Art Scene and Mass MoCA are just the start of what western Massachusetts and southern Vermont have to offer. Conveniently located near year-round recreation, including golfing, hiking, boating, biking, and snowmobiling, with skiing just minutes away at Mount Snow, Berkshire East, and Stratton. A warm and inviting move-in-ready property is ideal as a full-time residence or a Vermont getaway.

Listing Tools

Property Details of 1587 Upper Holbrook Road

Property Details

Interior Features

Exterior Features

Map Location

Broker Reciprocity 

Copyright 2025 PrimeMLS, Inc. All rights reserved. This information is deemed reliable, but not guaranteed. The data relating to real estate displayed on this display comes in part from the IDX Program of PrimeMLS. The information being provided is for consumers’ personal, non-commercial use and may not be used for any purpose other than to identify prospective properties consumers may be interested in purchasing. Data last updated December 5, 2025 3:12 PM EST

 

Hi there! How can we help you?

Contact us using the form below or give us a call.

Send Us A Message:

I agree to receive marketing and customer service calls and text messages from Stratton Rentals. To opt out, you can reply 'stop' at any time or click the unsubscribe link in the emails. Consent is not a condition of purchase. Msg/data rates may apply. Msg frequency varies. Privacy Policy.

Do not fill in this field:

This site is protected by reCAPTCHA and the Google Privacy Policy and Terms of Service apply.

Hi there! How can we help you?

Contact us using the form below or give us a call.

Send Us A Message:

Do not fill in this field:

This site is protected by reCAPTCHA and the Google Privacy Policy and Terms of Service apply.

Hi there! How can we help you?

Contact us using the form below or give us a call.

Send Us A Message:

Do not fill in this field:

This site is protected by reCAPTCHA and the Google Privacy Policy and Terms of Service apply.

Do not fill in this field:

This site is protected by reCAPTCHA and the Google Privacy Policy and Terms of Service apply.

Do not fill in this field:

This site is protected by reCAPTCHA and the Google Privacy Policy and Terms of Service apply.

Do not fill in this field:

This site is protected by reCAPTCHA and the Google Privacy Policy and Terms of Service apply.

$

Do not fill in this field:

This site is protected by reCAPTCHA and the Google Privacy Policy and Terms of Service apply.